
Hochmoderner Forschungscampus: Lichtdurchfluteter Neubau bildet neues Zentrum
12. Rigips Trophy 2019 I 2020: Okel GmbH & Co. KG gewinnt silberne Trophäe
Der Sartorius-Konzern ist einer der führenden Entwicklungspartner und Zulieferer der biopharmazeutischen Forschung und Industrie. Nicht zuletzt der stramme Wachstumskurs des Unternehmens ließ den früheren Produktions- und Verwaltungsstandort im Norden von Göttingen zu klein werden. Seit 2016 entsteht daher ein neuer, hochmoderner Campus im Westen der niedersächsischen Universitätsstadt. Auf einer Gesamtfläche von rund 170.000 m2 – das entspricht einer Fläche von 23 Fußballfeldern – finden sich verschiedene Produktionsgebäude, Labore, Logistikeinrichtungen sowie ein großes Mitarbeiterparkhaus. Einer der jüngsten Neubauten ist das „Sartorius Forum“. Es bildet das einladende Zentrum des Campus-Geländes. In ihm sind sowohl ein großes Demonstrations-Labor und 400 Büroarbeitsplätze untergebracht als auch die neue Betriebskantine mit bis zu 500 Plätzen. Über die teils herausfordernden Baumaßnahmen berichten Trockenbauunternehmer Burkhard Okel und Projektleiter Mirko Rohdenburg, die sich mit diesem Großprojekt die silberne Trophäe bei der 12. Rigips Trophy sichern konnten.


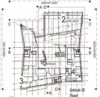
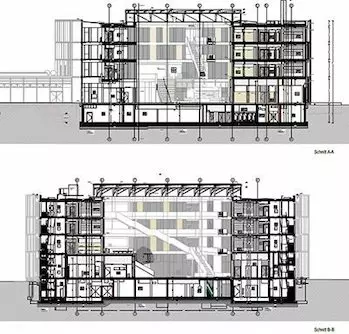
Grundriss und Querschnitt des neuen Sartorius Forums. Pläne: Bünemann & Collegen GmbH
Für die Trockenbauarbeiten allein war rund ein Jahr Bauzeit veranschlagt. Eine Zeit, in der die Okel GmbH & Co. KG teilweise mit bis zu 70 Mitarbeitern vor Ort aktiv war. „Insbesondere unsere gut eingespielten Ausbauteams haben dabei geholfen, bauablaufbedingte Behinderungen und Verzögerungen immer wieder auszugleichen und den strengen Zeitplan einzuhalten“, erklärt Geschäftsführer Burkhard Okel. „Ebenfalls von Vorteil war die bewährte, weil geübte Zusammenarbeit zwischen Bauherr, Bauleitung, Planung und Projektsteuerung. Viele der Baubeteiligten haben zuvor schon andere Projekte auf dem Sartorius Campus gemeinsam realisiert, sodass die Abstimmungsprozesse absolut reibungslos verliefen.“

Im neuen Forum sind sowohl ein großes Demonstrations-Labor und 400 Büroarbeitsplätze untergebracht als auch die neue Betriebskantine mit bis zu 500 Plätzen. Foto: förderraum Architekten + Planer, Henry Koch
Vielfältige Herausforderungen
Herausforderungen, die es zu meistern galt, gab es genug – schon alleine aufgrund der vielfältigen Nutzungsanforderungen im neuen Forum. Der Neubau gliedert sich in zwei Bereiche: den Hauptbaukörper mit 3.460 m2 Grundfläche und den eingeschossigen Speisesaal auf der Westseite mit rund 870 m2. Den Kern des Gebäudes bildet das zentrale mehrgeschossige, glasüberdeckte Atrium mit Treppen und Stegen, über die die Obergeschosse auf gleichermaßen funktionale wie attraktive Weise erschlossen werden. Im Erdgeschoss dient das Atrium als großzügige Eingangshalle zu den Büro- und Laborräumen, während die anschließende Kantine mit einem Café und Bistro als Treffpunkt für Mitarbeiter und Besucher gedacht ist. Eingangshalle wie Kantine sollen darüber hinaus für Sonderveranstaltungen und Betriebsversammlungenn genutzt werden können. Szenarien, die entsprechend im Brandschutzkonzept des Sartorius Forums detailliert mit berücksichtigt wurden.
„Die Vorgaben des Brandschutzkonzeptes waren nur eine der Herausforderungen im Forum. Durch die vielfälitgen Nutzungsarten in den unterschiedlichen Gebäudeteilen ergab sich auch eine Reihe von raumakustischen und vor allem gestalterischen Vorgaben und Anforderungen. Letztlich konnten wir hier eindrucksvoll zeigen, was mit modernen Trockenbausystemen heute möglich ist“, erläutert der verantwortliche Projektleiter Mirko Rohdenburg. „Die im Brandschutzkonzept genannten Schutzziele waren durch anlagentechnische, organisatorische und vor allem durch bauliche Maßnahmen sicherzustellen. Während der Bauphase gab es kontinuierliche Abstimmungen mit allen Fachplanern und regelmäßige Prüfungen durch die beteiligten Brandschutz-Gutachter. Entsprechend hoch waren die Anforderungen gerade an den Trockenbau.“ Durch die im Vorfeld aufeinander abgestimmten Verwendbarkeitsnachweise verschiedener Bauteile und Bauarten, insbesondere hinsichtlich der technischen Gebäudeausrüstung, der Feuerschutzabschlüsse und der Anforderungen aus den Bauordnungen und Brandschutzkonzepten, konnten mit den gewählten Systemen sämtliche Anforderungen vollumfänglich gelöst werden.

Zugang vom Atrium zur Kantine: Im Deckenbereich musste ein automatischer Brandschutzvorhang in die Unterkonstruktion integriert werden. Fotos: förderraum Architekten + Planer, Henry Koch
Gemeinsam mit den Technikern von RIGIPS wurden so etwa Brandschutzbekleidungen für tragende und aussteiffende Konstruktionen, für Kabel-, Installations- und Lüftungskanäle sowie für geeignete Wand- und Deckenkonstruktionen entwickelt, die Anforderungen bis F 120 erfüllen mussten. Um die einzelnen Flächen gerade in den Versammlungsbereichen später möglichst großzügig nutzen zu können, mussten zudem automatische Brandschutzvorhänge sicher in die Unterdecken eingesetzt werden. Besonders komplex gestaltete sich zum Beispiel die Herstellung der Unterkonstruktion für den Brandschutzvorhang, der das Atrium im Brandfall vom Speisesaal trennt. Die zwingend oberhalb des Brandschutzvorhanges hindurchzuführenden Lüftungskanäle machten die Entwicklung einer speziellen Stahlunterkonstruktion erforderlich. Die Unterkonstruktion sollte sowohl den zuverlässigen Raumabschluss, die Wärmedämmung, die Statik als aufnehmendes Bauteil als auch die notwendigen technischen Voraussetzungen für das Durchführen von brandschutztechnischen
L-Kanälen gewährleisten. Die Gesamtkonstruktion wurde zusätzlich zu den eingeholten Stellungnahmen hinsichtlich der Abweichungen der Prüfzeugnisse einer Zustimmung im Einzelfall unterzogen.
Brandsicher, schalldämmend, robust
Gerade bei der Konstruktion der unterschiedlichen Trennwände war das gesamte Know-how der Trockenbauprofis gefragt. Während in den öffentlichen Bereichen Wandsysteme mit erhöhten statischen Anforderungen etwa hinsichtlich der Aufnahme von Konsollasten, der Wandhöhen und der Oberflächenhärte gefordert waren, sollten in den Büro- und Verwaltungsbereichen eher grundflächenminimierte, schlanke Trennwände mit ausreichenden Schall- und Brandschutzeigenschaften realisiert werden. „Analog zu diesen Anforderungen haben wir daher auch ein breites Spektrum des von RIGIPS zur Verfügung gestellten Produktsortiments eingesetzt. In der Kantine kam zum Beispiel Rigips Die Harte zum Einsatz, die als – der Name ist Programm – Hartgipsplatte über entsprechend robuste Oberflächen verfügt. Aber auch außergewöhnliche Lösungen etwa für die Kühlzellen in der Küche, die auf die Zubereitung von bis zu 1.200 Mahlzeiten pro Schicht ausgelegt ist, wurden komplett in Trockenbauweise erstellt. In diesem Fall als Feuchtraumsysteme mit den speziellen vliesarmieren Rigips Glasroc X Platten und einer Dämmung für Minustemperaturen“, so Mirko Rohdenburg.

Falttechnik mit spitzwinkligen Kantenausbildungen sowie mit Sonderprofilen und zusammengesetzten Winkeln und radialen Formteilen als Lichtvoute beziehungsweise -kanal. Fotos: förderraum Architekten + Planer, Henry Koch
In den Bürobereichen wurden die Trennwände in der Regel beidseitig zweilgagig mit Rigips Bauplatten RB bekleidet und mit einer Einlage aus nichtbrennbarer Mineralwolle ausgeführt. In Räumen mit besonders hohen schallschutztechnischen Anforderungen wurde zusätzlich die spezielle Schallschutzplatte Rigips Die Blaue verbaut. Für die akustische „Aufenthaltsqualität“ nicht minder wichtig war die Ausgestaltung der verschiedenen Deckenbereiche. Und auch hier war die Expertise des Okel-Teams gefragt: So sorgt im Speisesaal eine rund 1.200 m2 große, sowohl horizontal, schräg als auch vertikal verlaufende Akustikdecke mit Akustikputz für eine angenhme Akustik, während in den Flur- und Konferenzräumen Rigips Lochdecken (Rigitone Activ’Air 12/25 Q) sowie akustisch wirksame Deckensegel (Ecophon Focus DS) für eine gute Sprachverständlichkeit sorgen.
Frei formbare Systeme für eine flexible Raumnutzung
Neben den brand- und schallschutztechnischen Anforderungen war im gesamten Gebäude auch die gestalterische Kompetenz von Burkhard Okel und seinen Mitarbeitern gefordert. „Einige Wände in den Bürobereichen wurden als frei formbare Systeme ausgeführt, um unter anderem für eine flexible Raumnutzung zu sorgen. Darüber hinaus wurden vielfältige Faltteile entweder vor Ort oder in unserer hauseigenen Werkstatt gefertigt. Und natürlich spielt auch das Licht eine besondere Rolle, es sollte überall sowohl funktionalen wie ästethischen Ansprüchen gerecht werden. So finden sich etwa in der Küche freigespannte, multifunktionale Lüftsungsdecken, in die wir ein entsprechendes Lichtsystem integriert haben. Die Laufbereiche im Speisesaal werden in der Deckengestaltung abgetreppt gespiegelt, wobei die Lichtinszenierung mithilfe von Einbaustrahlern, Lichtkanälen mit indirekter Beleuchtung und großformatigen Hängeleuchten mit goldfarbenen Reflektoren erfolgt. Und in den Bürobereichen sorgen Lichtakzente für die Kantenbetonung in Lichtvouten und schaffen so eine optische Abgrenzung zwischen offenen Räumen. Unterstützt wird dieses Spiel mit Licht und Sichtachsen durch eine offene Innenarchitektur, die die Blicke immer wieder etwa durch raumhohe Glastrennwände freigibt“, erklärt Burkhard Okel.

Höchste Ausführungsqualität in jedem Detail. Foto: förderraum Architekten + Planer, Henry Koch
Der Wahrnehmung von Geschäftsführer Burkhard Okel und Projektleiter Mirko Rohdenburg folgte auch die Jury der 12. Rigips Trophy 2019 I 2020: „Ein Objekt, das die ganze Bandbreite dessen zeigt, was mit modernen Trockenbausystemen heute machbar ist“, so lautete das Urteil der Experten, die den Ausbau des neuen Sartorius Forums mit der silbernen Trophäe auszeichneten. Zum einen wurde den zahlreichen brand- und schallschutztechnischen Herausforderungen mit beeindruckenden Lösungen begegnet. Der zielorientierte Ausbau der unterschiedlich genutzten Räume zeuge zum anderen von der Flexibilität und dem fundierten Fachwissen der Trockenbauprofis aus Diemelstadt, so die Jurybegründung.
Bautafel
Bauherr: SIV Grone 1 GmbH & Co. KG, Göttingen
Planung: Bünemann & Collegen GmbH, Hannover
Ausbaubetrieb: Okel GmbH & Co. KG, Diemelstadt
Gebietsleiter bei RIGIPS: Henning Häusler, Saint-Gobain Rigips GmbH
SAINT-GOBAIN RIGIPS GMBH
RIGIPS. Du hast für alles die Lösung. #RigipsFuerAlles
Als anerkannter und von Bauprofis geschätzter Systemanbieter für den hochwertigen Trockenbau bietet RIGIPS ein breites Sortiment an Gips- und Spezialplatten, Rigidur Gipsfaserplatten, Profilen und Zubehören sowie leistungsstarken Spachtelmassen und Fugenfüllern an. Die geprüften Lösungen bewähren sich in Innen- und Außenkonstruktionen in Trockenbauweise. Insbesondere das Systemangebot für witterungsgeschützte Fassadenkonstruktionen macht RIGIPS zum idealen Partner für den Holzrahmenbau. Mit seinem ständig erweiterten wohngesunden Sortiment und hoch wirksamen Brand- und Schallschutzsystemen steht der Hersteller für ein Maximum an Sicherheit und Raumkomfort. Flankiert wird das umfassende Produkt- und Systemportfolio von einem breiten Serviceangebot und einer persönlichen Fachberatung, die bei der Planung und Ausführung auch anspruchsvoller Bauprojekte wertvolle Unterstützung leistet. Gleichzeitig übernimmt RIGIPS Verantwortung für unsere Umwelt und setzt auf einen nachhaltigen Klimaschutz und die Schonung natürlicher Ressourcen. So werden etwa durch Recyclingangebote für Gipsplatten zunehmend Wertstoffkreisläufe geschlossen und durch aus Recycling hergestellte Produktverpackungen Primärrohstoffbedarfe reduziert. RIGIPS wurde mehrfach als Marke des Jahrhunderts ausgezeichnet und gehört zu den bedeutendsten Marken für moderne Trockenbaulösungen im deutschen Markt. Das Unternehmen ist Teil der internationalen Saint-Gobain Gruppe.
Kurz und knapp: Rigips®– für besseres Bauen zum Wohle von Mensch und Umwelt.
ÜBER SAINT-GOBAIN
Als weltweit führendes Unternehmen im nachhaltigen Leichtbau entwickelt, produziert und vertreibt Saint-Gobain Materialien und Dienstleistungen für den Bausektor und die Industriemärkte. Seine integrierten Lösungen für die Renovierung öffentlicher und privater Gebäude, für den Leichtbau und die Dekarbonisierung des Bausektors und der Industrie werden in einem kontinuierlichen Innovationsprozess entwickelt. Sie bieten Nachhaltigkeit und Leistung. Richtungweisend für das Engagement der Saint-Gobain Gruppe ist ihr Purpose „MAKING THE WORLD A BETTER HOME“.
- 51,2 Milliarden Euro Umsatz in 2022
- Mehr als168.000 Mitarbeiter*innen, in 75 Ländern vertreten
- Hat sich verpflichtet, bis 2050 die CO2-Neutralität zu erreichen
Erfahren Sie mehr über Saint-Gobain auf www.saint-gobain.de
und folgen Sie uns auf LinkedIn Saint-Gobain Germany.
Weitere Informationen:
SAINT-GOBAIN RIGIPS GMBH
Schanzenstraße 84
40549 Düsseldorf
Postfach 11 09 48
40509 Düsseldorf
Telefon 02 11 / 55 03-0
Telefax 02 11 / 55 03-208
[email protected]
Redaktionskontakt:
baumarketing.com GmbH
Christoph Tauschwitz
Laubenweg 13
D-45149 Essen
Tel.: +49 201 2202 400
Fax: +49 201 2202 460
[email protected]